| 価格 | 14,380万円 ![]() |
||||||
|---|---|---|---|---|---|---|---|
| 所在地 | 東京都品川区東五反田1丁目
この地域周辺の物件を見る |
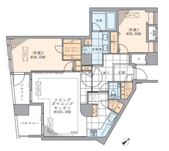
専有面積 | 58.07u | 間取り | 2LDK (-) | ||
| 交通 | JR山手線 五反田/徒歩4分
東急池上線 五反田/徒歩4分 都営浅草線 五反田/徒歩2分 |
管理費等 | 18,590円 | 修繕積立金 | 12,200円 | 所在階/階数 | 11階/地上14階 地下1階建 | 築年月 | 2013年11月築 | バルコニー面積 | 13.24m² |
電話をかける(携帯・PHS可)
0120-878-011
「ホームページを見た」とお伝え下さい。
お問い合わせ番号をお伝えください
RHS-232927874
| 特徴 |
|
|---|---|
| セールスコメント | 新規内装リフォーム済&LDK床暖房完備で快適な住空間です。 |
| 採光面 | 東南 | 取引態様 | 仲介 |
|---|---|---|---|
| 現況 | 空家 | 引渡し | 相談 |
| 総戸数 | 104戸 | 構造 | RC造 |
| テラス面積 | - | 専用庭面積 | - |
| 駐車場 | 空無 | 駐輪場 | - |
| 建物権利 | - | 土地権利 | 所有権 |
| 用途地域 | 商業地域 - - | 管理態様 | 管理形態:日勤(全部委託) 管理組合:- 管理会社:三菱地所コミュニティ株式会社 |
| 小学校区 | () |
中学校区 | () |
| 情報更新日 | 2026年04月24日 | 次回更新日 | 2026年05月08日 |
電話をかける(携帯・PHS可)
0120-878-011
「ホームページを見た」とお伝え下さい。
お問い合わせ番号をお伝えください
RHS-232927874
| 年利率 | % |
||
|---|---|---|---|
| ボーナス払い | 返済年数 | ||
| 頭金 | 直接入力する | 万円 | |

毎月のご返済額 |
ボーナス(×年2回) |
物件価格14,380万円 |
電話でお問い合わせ
センチュリー21プレミアムライフ
|
電話をかける 0120-878-011 ※「ホームページを見た」とお伝えください。 |
お問い合わせ番号をお伝えください RHS-232927874 |
|---|
五反田駅徒歩4分の好立地に佇む、南東向き角部屋住戸◎陽当たり・眺望・通風に恵まれた快適な住空間。ペット相談(細則有)♪