| 価格 | 6,299万円 ![]() |
||||||
|---|---|---|---|---|---|---|---|
| 所在地 | 東京都墨田区立花5丁目
この地域周辺の物件を見る |
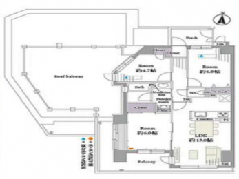
専有面積 | 66.74u | 間取り | 3LDK (-) | ||
| 交通 | 東武亀戸線 小村井/徒歩3分
京成押上線 京成曳舟/徒歩15分 東武亀戸線 東あずま/徒歩8分 |
管理費等 | 19,960円 | 修繕積立金 | 19,820円 | 所在階/階数 | 5階/地上10階建 | 築年月 | 1998年9月築 | バルコニー面積 | - |
電話をかける(携帯・PHS可)
0120-878-011
「ホームページを見た」とお伝え下さい。
お問い合わせ番号をお伝えください
RHS-232925623
| 特徴 |
|
|---|---|
| セールスコメント | 周辺にはコンビニやスーパーもあり、周辺環境も整っています。 |
| 採光面 | 南西 | 取引態様 | 仲介 |
|---|---|---|---|
| 現況 | 空家 | 引渡し | 相談 |
| 総戸数 | 31戸 | 構造 | SRC造 |
| テラス面積 | - | 専用庭面積 | - |
| 駐車場 | なし | 駐輪場 | - |
| 建物権利 | - | 土地権利 | 所有権 |
| 用途地域 | 商業地域 - - | 管理態様 | 管理形態:日勤(全部委託) 管理組合:- 管理会社:株式会社田園ビルセンター |
| 小学校区 | 墨田区立立花吾嬬の森小学校 (東京都墨田区) この学区の他の物件を見る |
中学校区 | 吾嬬立花中学校 (東京都墨田区) この学区の他の物件を見る |
| 情報更新日 | 2026年01月15日 | 次回更新日 | 2026年01月29日 |
電話をかける(携帯・PHS可)
0120-878-011
「ホームページを見た」とお伝え下さい。
お問い合わせ番号をお伝えください
RHS-232925623
| 年利率 | % |
||
|---|---|---|---|
| ボーナス払い | 返済年数 | ||
| 頭金 | 直接入力する | 万円 | |

毎月のご返済額 |
ボーナス(×年2回) |
物件価格6,299万円 |
電話でお問い合わせ
センチュリー21プレミアムライフ
|
電話をかける 0120-878-011 ※「ホームページを見た」とお伝えください。 |
お問い合わせ番号をお伝えください RHS-232925623 |
|---|
スカイツリーが見えるルーフバルコニー付マンション!リフォーム済みで綺麗な部屋で過ごせる。小村井駅から徒歩3分と好アクセス